CAPPA BASE RETTANGOLARE PER BARBECUE (smontata)

Descrizione

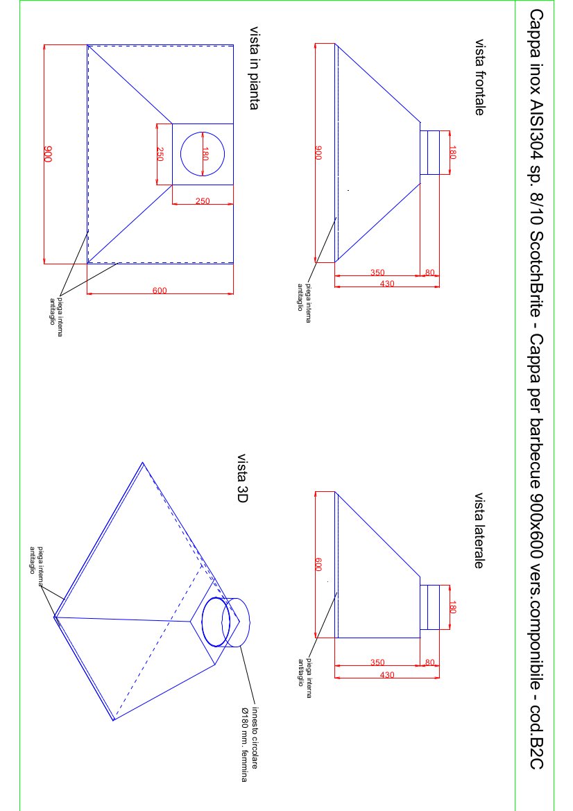
Cappa per barbecue in Acciaio Inox AISI304 sp.0,8 mm con finitura ScotchBrite.

Strutturata per il fissaggio a parete con base rettangolare ed uscita fumi circolare decentrata in adiacenza della parete posteriore.

Disponibile nelle seguenti misure standard:

- base rettangolare mm. 800x500 h. 350 con uscita fumi Ø150

- base rettangolare mm. 900x600 h. 350 con uscita fumi Ø180

- base rettangolare mm. 1000x700 h. 400 con uscita fumi Ø200

VERSIONE SMONTATA da assemblare con l'utilizzo degli appositi bulloncini forniti insieme al prodotto.

Possibilità di realizzazione su ordinazione di cappe con misure personalizzabili.

Per l'acquisto del singolo prodotto visitare il nostro shop-on line tramite l'apposito collegamento in Home page oppure tramite il link: https://lminox.negoziditalia.it/index.php mentre per acquisti multipli consigliamo di inviarci tramite email o whatsapp una lista completa degli elementi necessari specificando l'eventuale luogo di consegna. Il nostro ufficio vendite provvederà ad inviare un preventivo di fornitura preciso e dettagliato.